HAUS IM FELD
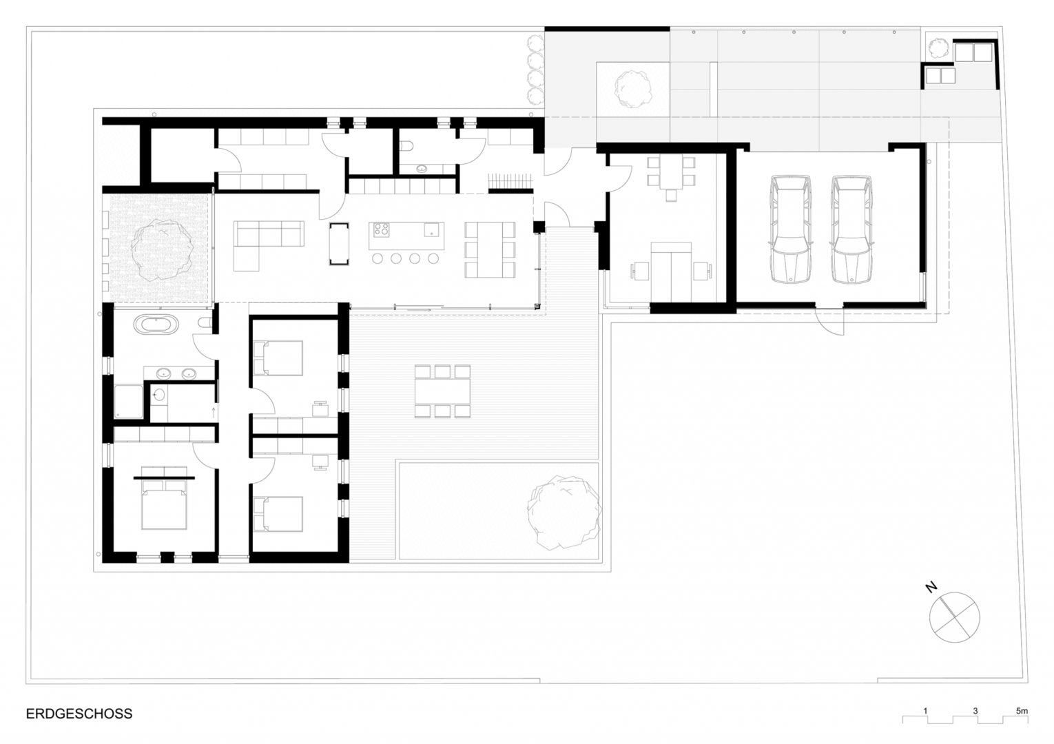
Der L-förmige Bungalow im Bauhaus-Stil passt sich aufgrund seiner Form ideal in die von Vierkanthöfen geprägte Umgebung ein. Straßenseitig gewährt der langgestreckte Baukörper keinen Einblick, doch zum Feld öffnet sich der hohe Wohnbereich dank der raumhohen Verglasung komplett und bietet einen schönen Ausblick auf die Felder, Äcker und Berge, die sich in weiter Entfernung erheben.
Dem Wohnbereich ist eine großzügige Terrasse vorgelagert, auf welche man sowohl über den Wohnbereich, als auch über den Vorraum und die Kinderzimmer gelangt. An den Stirnseiten des Wohntraktes befindet sich einerseits das Büro und andererseits ein kleines Atrium. Der Privatbereich (Schlafzimmer, Badezimmer) ist im niedriger ausgeführten Schenkel des Bungalows untergebracht. Aus dem Badezimmer genießt man einen großzügigen Ausblick in das angrenzende Atrium – es gewährt jedoch keine Einblicke von aussen. Trotz des hohen Glasanteiles bietet der Bungalow genügend Privatsphäre und Rückzugsbereiche.
Projekt Details
TYP
Einfamilienhaus + Büro
NGF
255 m2
BAUWEISE
Holzmassivbau
PLANUNG
2016
AUFTRAGGEBER
Privat
STATUS
realisiert
ORT
Bezirk Scheibbs | Niederösterreich
PLANUNGSUMFANG
Vorentwurf, Entwurf, Einreichung, Polierplanung













