HAUS FÜR JUNG
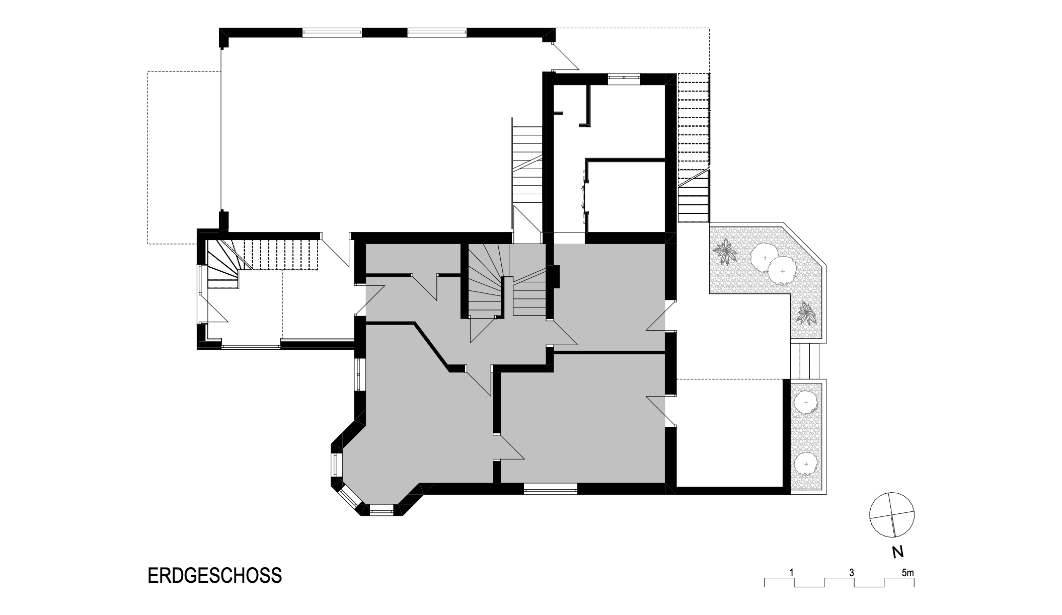
Auf einem ca. 900 m2 großen Grundstück wurde ein Zubau an ein bestehendes Einfamilienhaus – für die jüngere Generation – errichtet. Um der Jungfamilie genügend Platz bieten zu können, wurde das Bestandsgebäude in 2 Wohnbereiche gegliedert. Im Erdgeschoss sollte die Elterngeneration alle notwendigen Räume verfügbar haben, im Obergeschoss sollte die nunmehr 4-köpfige Familie ausreichend Fläche vorfinden. Nicht nur im Obergeschoss war deshalb die Erweiterung des Wohnbereiches erforderlich, auch im Erdgeschoss musste ein Anbau vorgenommen werden, um das vormals im Obergeschoss situierte Badezimmer und eine Ankleide unterzubringen.
Die interne Stiege wurde eliminiert und in einem separaten Vorraum untergebracht. Somit sollte die Privatsphäre der beiden Generationen gewahrt bleiben. Vom gemeinsamen Vorraum wird somit sowohl das Erdgeschoss als auch das Obergeschoss erschlossen. Auch die Garage wurde vergrößert und bietet nun mehr Stellfläche. Oberhalb des Erdgeschossanbaus wurde eine großzügige Terrasse ausgebildet, die sich süd-westlich orientiert und sowohl einen direkten Zugang vom Wohnbereich hat, als auch einen direkten Abgang in den gemeinsamen Garten.
Projekt Details
TYP
Zubau
NGF
165 m2
BAUWEISE
Holzriegelbauweise
PLANUNG
2017-2018
AUFTRAGGEBER
Privat
STATUS
realisiert
ORT
Bezirk Scheibbs | Niederösterreich
PLANUNGSUMFANG
Vorentwurf, Entwurf, Einreichung (unterstützend)













