HALLE BEI NATURA 2000
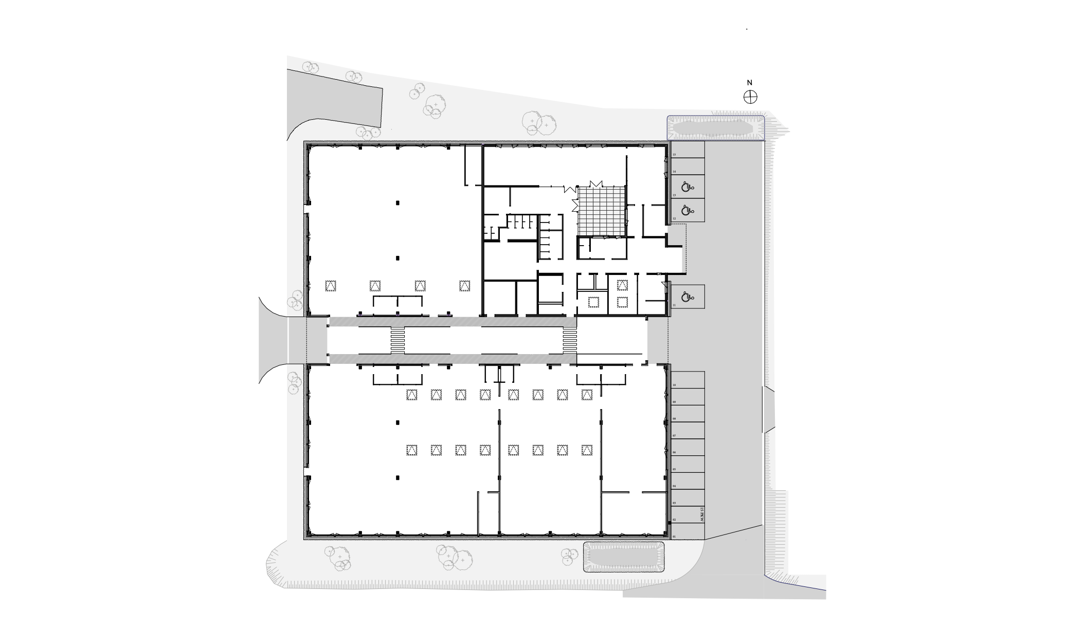
In Zusammenarbeit mit dem Planungspartner (planungsatelier steinwendtner) wurde auf einem ca. 5100 m2 großen Grundstück – Nahe dem Natura 2000 Gebiet – eine Halle im Auftrag einer sozialen NPO (Caritas der Diözese St. Pölten) errichtet, die als Sozialeinrichtung dient und Menschen mit kognitiver und Mehrfachbehinderung Recyclingarbeiten durchführen. Die Halle gliedert sich in zwei Bereiche: zum einen gibt es einen Verwaltungsbereich mit Personalräumen als auch Gemeinschaftsräumen (Bewegungszone, Kantine), zum anderen Arbeits- und Lagerbereiche. Ziel dieses Projektes war, eine Verbindung zwischen der bestehenden Halle am westlich angrenzenden Grundstück und der neu errichteten Halle sowie dem östlich angrenzenden Grundstück des Gemeindeumweltverbandes zu schaffen. Eine lange und breite Magistrale, welche sich in der neuen Halle von West nach Ost erstreckt, erfüllt nun diese Vorgabe und teilt die großzügige Halle somit auch in Arbeitsbereiche im Süden und einen Arbeitsbereich und den Verwaltungsbereich im Norden.
Mitten im Verwaltungsbereich befindet sich ein Atrium, welches sowohl für eine angenehme natürliche Belichtung der Innenräume sorgt, als auch zum Verweilen im Freien einlädt. In den Arbeitsbereichen sind Massivholzboxen eingeschoben, in welchen Leitstellen und Sanitärräume untergebracht sind. Bei der Pultdachkonstruktion kam ebenfalls Holz zum Einsatz, denn diese wurde mit Holzleimbindern hergestellt, welche auf Stahlbetonstützen lasten. Die Deckenuntersicht der Halle wurde mittels gelochter OSB Platten mit Vlieskaschierung geplant und sorgt somit nicht nur für eine optisch angenehme Atmosphäre sondern reduziert auch den Raumschall.
Projekt Details
TYP
Hallenbau (Sozialeinrichtung)
NGF
2769 m2
BAUWEISE
Stahl-/Holz-/Massivbauweise
PLANUNG
2017-2021
AUFTRAGGEBER
Planungspartner
STATUS
realisiert
ORT
Bezirk Melk | Niederösterreich
PLANUNGSUMFANG
Vorentwurf, Entwurf, Einreichung, Polierplanung, Detailplanung













